Die Zimmer im 1. Stock
The rooms on the 2nd floor
Die Wohnung im 1. OG bietet neben den vier einzeln vermieteten Zimmern eine komplett ausgestattete Gemeinschaftsküche mit Ceranfeld, Backofen, Geschirrspüler und Kühl-Gefrierkombination, ein großes Bad mit Walk-In Rain-Shower und ein separates WC.
Im geräumigen Eingangsbereich befindet sich ein Esstisch und Garderobe für alle Mieter.
In addition to the four individually rented rooms, the apartment on the 1st floor offers a fully equipped communal kitchen with ceramic hob, oven, dishwasher and fridge-freezer, a large bathroom with walk-in rain shower and a separate WC.
In the spacious entrance area there is a dining table and checkroom for all tenants.
Gemeinschafträume
Common rooms
Die Wohnung bietet einen großzügigen Eingangsbereich mit Esstisch, eine Küche, ein Bad und ein separates WC.
Die Küche ist voll ausgestattet mit Ceran-Kochfeld, Backofen, Kühl-Gefrier-Kombination und Spülmaschine,
Das Bad bietet eine geräumige Walk-In Rain-Shower, eine Badewanne, eine Toilette, ein Doppelwaschbecken und genügend Stauraum.
Außerdem gibt es ein separates WC.
Zimmer 1-1 (vorne links)
Room 1-1 (front left)
Dieses Zimmer zur Paul-Ehrlich-Straße hin (wenig Verkehr) ist mit 25,6 m² das größte in der Wohnung.
This room facing Paul-Ehrlich-Straße (little traffic) is the largest in the apartment at 25.6 m².
Das Zimmer ist hell mit einer Raumhöhe von 2,85m.
Die Einrichtung besteht aus einem komfortablen großen Boxspring-Bett (2,00m x 1,60m) von Emma, einem geräumigen Kleiderschrank, einem großen Schreibtisch mit Stuhl, einem separaten Regal und einem gemütlichen Sessel als Leseecke.
The room is bright with a ceiling height of 2.85m.
The furnishings consist of a comfortable large box-spring bed (2.00m x 1.60m) from Emma, a spacious closet, a large desk with chair, a separate shelf and a comfortable armchair as a reading corner.
Das Zimmer ist derzeit vermietet
The room is currently rented out
* Erläuterung zum Inklusiv-Mietpreis finden sie auf der Startseite unter dem Punkt "Faire Konditionen" auf der Startseite.
* You will find an explanation of the inclusive rental price on the homepage under "Fair conditions".
Zimmer 1-2 (vorne rechts)
Room 1-2 (front right)
Dieses geräumige Zimmer zur Paul-Ehrlich-Straße hin (wenig Verkehr) hat eine Größe von 22,2 m².
This spacious room facing Paul-Ehrlich-Straße (little traffic) has a size of 22.2 m².
Das Zimmer ist hell mit einer Raumhöhe von 2,85m.
Die Einrichtung besteht aus einem komfortablen großen Boxspring-Bett (2,00m x 1,60m) von Emma, einem geräumigen Kleiderschrank, einem großen Schreibtisch mit Bürostuhl, einem separaten Regal und einem gemütlichen Sessel als Leseecke.
The room is bright with a ceiling height of 2.85m.
The furniture consists of a comfortable large box-spring bed (2.00m x 1.60m) from Emma, a spacious closet, a large desk with office chair, a separate shelf and a cozy armchair as a reading corner.
Das Zimmer ist derzeit vermietet
The room is currently rented out
* Erläuterung zum Inklusiv-Mietpreis finden sie auf der Startseite unter dem Punkt "Faire Konditionen" auf der Startseite.
* You will find an explanation of the inclusive rental price on the homepage under "Fair conditions".
Zimmer 1-3 (hinten links)
Room 1-3 (back left)
Dieses Zimmer zur Gartenseite sind eigentlich zwei Zimmer, eines mit 17,3 m² und ein separates Schlafzimmer
mit 13,3 m².
This room on the garden side is actually two rooms, one with 17.3 m² and a separate bedroom
with 13,3 m.
Die beiden Zimmer sind hell mit einer Raumhöhe von 2,85m.
Die Einrichtung des separaten Schlafzimmers besteht aus einem komfortablen großen Boxspring-Bett (2,00m x 1,40m) von Emma und einem großen Einbauschrank
Das andere Zimmer bietet eine großen Schreibtisch mit Bürostuhl, ein separates Regal und ein geräumige Couch.
The two rooms are bright with a ceiling height of 2.85m.
The furniture in the separate bedroom consists of a comfortable large box-spring bed (2.00m x 1.40m) from Emma and a large built-in wardrobe. The other room has a large desk with office chair, a separate shelf and a spacious couch.
Das Zimmer ist derzeit vermietet
The room is currently rented out
* Erläuterung zum Inklusiv-Mietpreis finden sie auf der Startseite unter dem Punkt "Faire Konditionen" auf der Startseite.
* You will find an explanation of the inclusive rental price on the homepage under "Fair conditions".
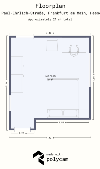
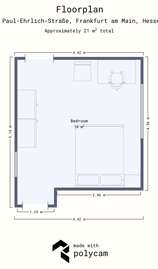
Zimmer 1-4 (hinten links)
Room 1-4 (back left)
Dieses Zimmer zur Gartenseite ist mit 19,2 m² das kleinste auf der Etage, bietet dafür aber als einziges einen überdachten Balkon von 9,6 m²
This garden-facing room is the smallest on the floor at 19.2 m², but is the only one to offer a covered balcony of 9.6 m²
Das Zimmer ist hell mit einer Raumhöhe von 2,85m.
Die Einrichtung besteht aus einem komfortablen großen Boxspring-Bett (2,00m x 1,60m) von Emma, einem geräumigen Kleiderschrank, einem kompakten Schreibtisch mit Bürostuhl, einem separaten Regal und einem gemütlichen Sessel als Leseecke.
The room is bright with a ceiling height of 2.85m.
The furnishings consist of a comfortable large box-spring bed (2.00m x 1.60m) from Emma, a spacious closet, a compact desk with office chair, a separate shelf and a cozy armchair as a reading corner.
Das Zimmer ist derzeit vermietet
The room is currently rented out
* Erläuterung zum Inklusiv-Mietpreis finden sie auf der Startseite unter dem Punkt "Faire Konditionen" auf der Startseite.
* You will find an explanation of the inclusive rental price on the homepage under "Fair conditions".













































